Ruim 2 slpk. zicht-appartement met garagebox
Gistelse Steenweg 142, 8200 Brugge Sint-Andries
Ref. 7219822
Beschrijving
Op de 7de verdieping van de Residentie Groenhove wacht dit aangename en verzorgde appartement met een prachtig open zicht over Sint-Andries en Sint-Michiels. Dankzij de zuidgerichte oriëntatie geniet je hier de hele dag van licht, warmte en een heerlijk gevoel van ruimte.
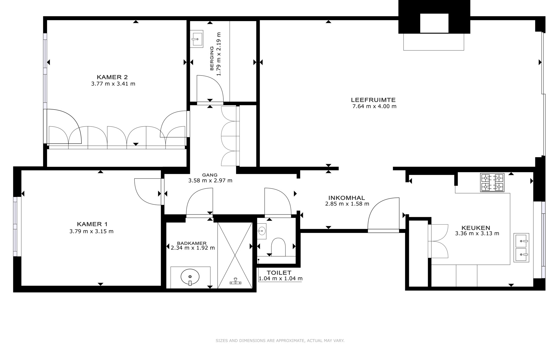
De ruime leefruimte met parketvloer sluit naadloos aan op het zonnige terras van 6 m² — een ideale plek om te ontspannen met zicht over de stad. De afzonderlijke, volledig ingerichte keuken biedt alle comfort en veel praktische bergruimte. Verder is er een badkamer met inloopdouche, een afzonderlijk toilet, twee volwaardige slaapkamers en een grote berging/wasplaats. Door de vele ingemaakte kasten wordt elke vierkante meter optimaal benut.
Een private kelderberging en een ruime garagebox zijn inbegrepen in de prijs.
Een ideaal appartement voor wie houdt van ruimte, licht en comfort op een centrale, goed bereikbare locatie nabij winkels, openbaar vervoer en het centrum van Brugge.
Interesse?
Zuidgericht terras met open zicht
101 m² bewoonbare oppervlakte
Verzorgde residentie met lift
Veel ingemaakte kasten en praktische indeling
Inclusief garagebox en kelder
360° view
Kenmerken
2 slaapkamer(s)
1 Badkamer(s)
1 Toilet(ten)
Parkeren
Terras
Lift
Riolering
Telefoonbekabeling
Kelder
Electriciteit
Dubbele beglazing
Algemene Informatie
- Totale oppervlakte
- 107 m²
- Bewoonbare opp.
- 101 m²
- Bouwjaar
- 1971
- Kadastraal inkomen
- € 932
- Slaapkamer 1
- 13 m²
- Slaapkamer 2
- 12 m²
- Terras 1
- 6 m²
- Woonkamer
- 30 m²
- Keuken
- 10 m²
- Badkamer
- 5 m²
Energieprestaties
- EPC categorie

- EPC
- 266 kWh/m²
- EPC referentie
- 20250321-0003559153-RES-1
Stedenbouwkundige Informatie
- Overstromingsgevoelig
- Nee
- Elektriciteitskeuring beschikbaar
- Ja, niet conform
- Bouwvergunning
- Ja
- Voorkooprecht
- Nee
- Verkavelingsvergunning
- Nee
- Bodemattest
- Ja
- Asbestattest
- Ja, 24/03/2025
- G-score
- B
- P-score
- B
Ligging
Residentie Groenhove bevindt zich op de Gistelse Steenweg in het hart van Sint-Andries, op een centrale en vlot bereikbare locatie nabij winkels, openbaar vervoer, scholen en het centrum van Brugge. Vanuit het appartement geniet je van een open zuidelijk zicht over Sint-Andries en Sint-Michiels, terwijl je toch woont in een groene en aangename buurt met alles binnen handbereik.




















